30 Year Fixed Rates starting at 4.99%*
Learn More!

Valencia on The Lake • Little Elm, TX

Hillcrest 2F (w/Media) New Home Plan – 3,896 Sqft · 5 Bedroom · 3.5 Bathroom

From $726,950
Community Sales Center
13913 Cotanda Rd
Little Elm, TX 75068 (Directions)

Hours
Monday - Saturday: 10 a.m. - 6 p.m.
Sunday: 12:30 p.m. - 6 p.m.
Community Sales Consultants
Jason Swaner
Jason Swaner
Send Email
945-279-6304
Online Sales Consultants
Cassandra Hercules
Cassandra Hercules
Send Email
(469) 391-0001
Wendy Staeden
Wendy Staeden
Send Email
(469) 391-0001

Hillcrest 2F (w/Media)

Available to Build: Valencia on The Lake

Starting From
$726,950

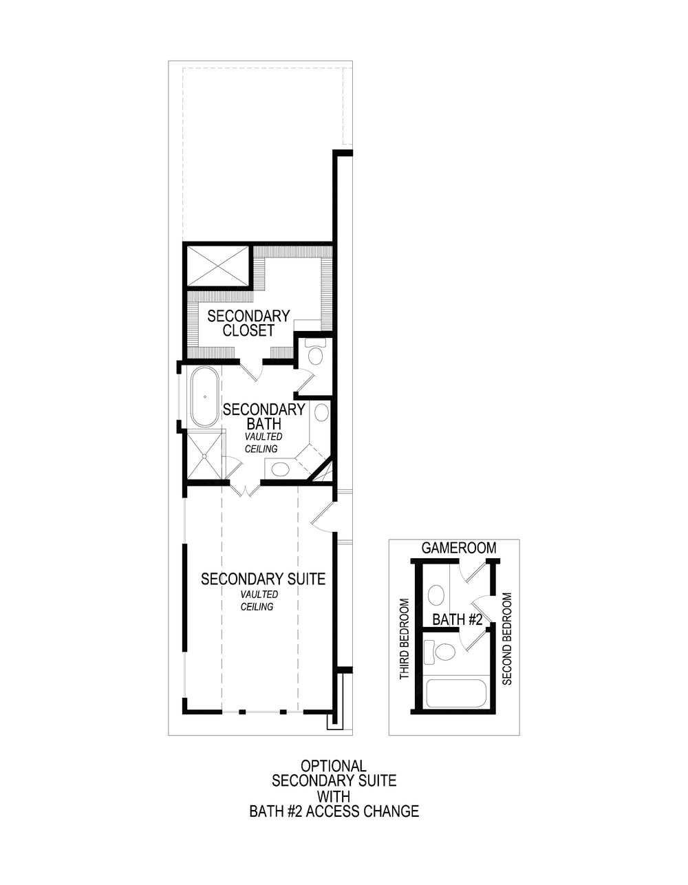
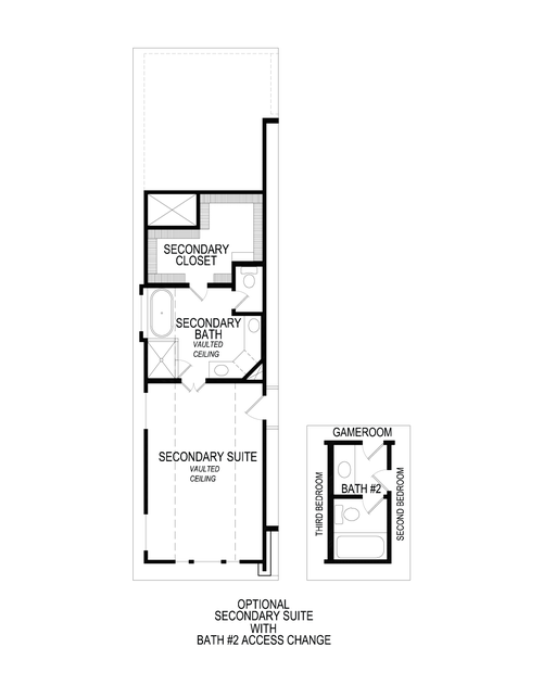
Explore the Hillcrest 2F (w/Media) Floor Plan – New Home Design Available in Little Elm, TX

The Hillcrest 2F (w/Media) offers 5 bedrooms, 3.5 bathrooms, and 3896 sq. ft. of thoughtfully designed living space that adapts to your needs. From everyday routines to special moments, this layout is built to support how you live — with comfort, functionality, and style in mind. Features like a dedicated study and powder room – ideal for remote work or guests, formal dining and living areas – perfect for hosting and daily living, and upstairs game and media rooms – great for family fun and entertainment create a flexible foundation for personalization and convenience. Whether you're relaxing, hosting, working from home, or simply enjoying daily life, the Hillcrest 2F (w/Media) provides the right spaces in the right places. Available in select First Texas Homes communities across DFW, this plan can be tailored with a variety of structural options and design finishes. Explore the Hillcrest 2F (w/Media) today and discover how First Texas Homes makes it easy to create a home that feels truly yours.

Don’t forget, with every First Texas, Gallery Custom, or Harwood Home, you will have the flexibility to customize our plans to fit your family perfectly.

Some features shown on the layout may be optional. Speak with the Sales Counselor for community plan-specific features.

Season of Savings

Up to $20K towards closing cost assistance, interest rate buydown, or pre-paids when you finance with our preferred lender.

Plus... Pick Your Perk

  • Pick Your Perk - $10,000: Receive a $10,000 design center Allowance towards options and upgrades
  • Pick Your Perk - $5,000 Your Way: Receive an additional $5k to use towards closing costs, upgrades or options
  • Pick Your Perk - Extended Patio: Extend your covered patio 100 additional sqft.
  • Pick Your Perk - $5,000 NFM Gift Card: Receive an additional $5k NFM Gift Card
  • Pick Your Perk - Blinds Package: Receive 2" Faux Wood Blinds for the entire house.


Hillcrest 2F (w/Media)

5
Bedrooms
3.5
Baths
2
Garage
3,896
Sq Ft
2
Stories
Floor Plan
Floor Plan 1
Floor Plan 2
Floor Plan 3

Photo Gallery

ElevationImagePremium Elevation GElevation AElevation BElevation CPremium Elevation CCPremium Elevation EPremium Elevation FPremium Elevation HPremium Elevation H52Premium Elevation JPremium Elevation JBPremium Elevation JSPremium Elevation KCPremium Elevation KHPremium Elevation KMPremium Elevation KSPremium Elevation LPremium Elevation LBPremium Elevation M

3D Virtual Tour

Find This Plan in our Other Communities

Sort
Under Construction in Glenn Heights, TX
The Villages at Charleston
Hillcrest 2F (w/Media)
2502 Chalmers Road
Glenn Heights, TX 75154
4,009 Sq Ft | 5 Beds | 4 Baths | 2 Car | 2 Stories
Was: $651,929 Now: $611,929
Move-In Ready in Forney, TX
Polo Ridge
Hillcrest 2F (w/Media)
9709 Palermo Drive
Forney, TX 75126
3,896 Sq Ft | 5 Beds | 4 Baths | 2 Car | 2 Stories
Was: $674,990 Now: $642,950
Move-In Ready in Waxahachie, TX
Oaks of North Grove
Hillcrest 2F (w/Media)
1771 English Way
Waxahachie, TX 75165
3,975 Sq Ft | 5 Beds | 4 Baths | 2 Car | 2 Stories
Now $649,250
Move-In Ready in Waxahachie, TX
Oaks of North Grove
Hillcrest 2F (w/Media)
707 Majestic Oak Lane
Waxahachie, TX 75165
3,977 Sq Ft | 5 Beds | 3.5 Baths | 3 Car | 2 Stories
Was: $712,620 Now: $672,620
Move-In Ready in Fate, TX
Woodcreek
Hillcrest 2F (w/Media)
932 Pilatus Lane
Fate, TX 75087
3,989 Sq Ft | 5 Beds | 4 Baths | 3 Car | 2 Stories
Was: $827,290 Now: $689,950
Move-In Ready in Fate, TX
Woodcreek
Hillcrest 2F (w/Media)
503 Curtiss Drive
Fate, TX 75087
4,002 Sq Ft | 5 Beds | 4 Baths | 3 Car | 2 Stories
Was: $813,890 Now: $698,950
Under Construction in Celina, TX
Sutton Fields
Hillcrest 2F (w/Media)
5601 Aiken St
Celina, TX 75009
3,989 Sq Ft | 6 Beds | 4 Baths | 2 Car | 2 Stories
Was: $877,645 Now: $837,645
Under Construction in Little Elm, TX
Valencia on The Lake
Hillcrest 2F (w/Media)
14032 Alfafar Ct
Little Elm, TX 75068
3,924 Sq Ft | 6 Beds | 4 Baths | 2 Car | 2 Stories
Was: $889,642 Now: $852,974
Move-In Ready in Celina, TX
Wellspring Estates
Hillcrest 2F (w/Media)
2624 Shadybrook Drive
Celina, TX 75009
3,975 Sq Ft | 5 Beds | 4 Baths | 2 Car | 2 Stories
Was: $914,950 Now: $874,950
Move-In Ready in Prosper, TX
Cambridge Estates
Hillcrest 2F (w/Media)
1321 Duke Drive
Prosper, TX 75078
3,960 Sq Ft | 5 Beds | 4 Baths | 3 Car | 2 Stories
Was: $1,049,950 Now: $914,900
Sold: Under Contract
Hidden Lakes Estates
Hillcrest 2F (w/Media)
900 Hidden Lakes
Desoto, TX 75115
3,990 Sq Ft | 5 Beds | 4 Baths | 2 Car | 2 Stories
Sold: Under Contract
Mira Lagos Crossing
Hillcrest 2F (w/Media)
2561 Baypoint Dr
Grand Prairie, TX 75054
4,197 Sq Ft | 5 Beds | 4 Baths | 3 Car | 2 Stories
Sold: Under Contract
Brookfield
Hillcrest 2F (w/Media)
2512 Rolling Hills Drive
Melissa, TX 75454
3,989 Sq Ft | 6 Beds | 4 Baths | 2 Car | 2 Stories
Sold: Under Contract
Villages of Creekwood
Hillcrest 2F (w/Media)
1019 Modesto Drive
Frisco, TX 75036
3,896 Sq Ft | 5 Beds | 3.5 Baths | 2 Car | 2 Stories

About Valencia on The Lake

Discover Valencia on the Lake, a premier master-planned community nestled on 448 acres along the scenic shores of Lake Lewisville in Little Elm, Texas. This stunning neighborhood offers residents an unmatched combination of tranquility, modern amenities, and unbeatable location. Enjoy over 80 acres of lush open green space, a state-of-the-art amenity center, resort-style swimming complex, sand volleyball court, children's playground, and a multi-sport court — perfect for active families and outdoor enthusiasts alike. Located just minutes from top shopping and dining destinations like Stonebriar Mall, Legacy West, and The Shops at Legacy, Valencia on the Lake also offers convenient access to entertainment hotspots including Toyota Stadium, Dr. Pepper Ballpark, and Hydrous Wake Park. Families will appreciate being zoned to the highly-rated Little Elm Independent School District, offering award-winning schools and a strong academic foundation. Whether you're seeking peaceful lakeside views, modern conveniences, or access to top-rated schools, Valencia on the Lake has everything you need to live life beautifully.
Models
  • Princeton 2F - Elevation C
Community Info
  • School District: Little Elm ISD
  • Tax Rate: 1.97%
  • HOA: $619 (Annually)
Amenities
  • Basketball Courts
  • Exclusive Clubhouse
  • Fitness Center with Views of the Lake
  • Greenbelt(s)
  • Sand Volleyball Courts
  • Tennis Courts
  • Two Swimming Pools, Cabanas, & Splash Pad
  • Walking Trails
City Services
  • Denton County Elections Administration: (940) 349-3200
  • Little Elm Fire Station No.1: (214) 975-0420
  • Little Elm Police Department: (214) 975-0460
  • Little Elm Public Library: (214) 975-0430
  • Texas Department of Public Safety: (940) 484-6666

What Homeowners Say in Valencia on The Lake

“The team was helpful and mostly responsive to emails. We had a small miscommunication during the process, but it worked out in the end. After the sale the team helped with a delivery issue that wasn’t their responsibility, which made a big difference and show…”
“I appreciated the team's great attitude. It was nice to work with a builder who allowed changes to the home.”
“Everyone we worked with was personable and helpful throughout the process. They were consistently nice, responsive, and extremely helpful.”
“The team was always attentive, friendly, and patient. I appreciated it, they made the process a great experience, and I'm very happy so far with FTH.”
“I found the team helpful and knowledgeable. They were quick to respond to calls and emails and consistently helpful.”

Nearby Schools

Little Elm ISD

Elementary School:
  • Lakeview Elementary School
Middle School:
  • Lowell H Strike Middle School
High School:
  • Little Elm High School
IMAGE OF NFM GIFT CARD

Our Gift To You

Receive a $3,000 Nebraska Furniture Mart Gift Card after closing when you finance with our preferred lender.

Style your new home with stunning furniture, high-end appliances, and stylish decor from the largest furniture store in Texas. As a valued First Texas Homes customer, you’ll also enjoy these unbeatable perks:

  • img 50% Off suggested retail on select furniture and area rugs.
  • img 10% Off current price on select 75" & larger TVs.
  • img Free shipping with any furniture purchase of $349 or more.

Exceptional Value with Our Most Popular Upgrades Now Included - No Extra Cost

At First Texas Homes, we're committed to providing you with the home of your dreams without compromise. For over 39 years, our innovative approach has allowed us to offer custom-quality homes at unbeatable production-builder prices. Many of our most sought-after floor plans now come with these popular upgrades as standard features, ensuring that you get the best value in a brand-new home. Experience the perfect blend of style, quality, and affordability — only with First Texas Homes.

Disclaimer: Upgrades, such as the circular staircase, butler’s pantry, California kitchen, freestanding bathtub in the primary bathroom, 3x4 shower in the primary bathroom, and squared wall windows, are plan-specific and may not be available on every floorplan. Featured upgrades may not be available on Select Series floorplans. Additionally, linear electric fireplaces may not be available in all communities.

Save 30% on Options and Upgrades

Design your perfect home with a 30% discount on upgrades and options at our Design Center. Personalize every detail, from finishes and flooring to kitchen cabinets and more, while enjoying incredible savings.

Let us help bring your vision to life with exceptional value and personalized options.

  • Receive a complimentary design session
    with our design team.
  • Choose from the latest trends in flooring.
  • Select from popular lighting fixtures & hardware.

Disclaimer: This offer is available for new builds only and excludes inventory homes. HomePro low-voltage upgrades and lot premiums are not eligible for the 30% off incentive or discount program.

Step 01
Contract on your new First Texas Home

Contract on your new First Texas Home.

Step 02
Book your appointment with our award winning design team

Book your appointment with our award winning design team.

Step 03
Make your selections and save 30%

Make your selections and save 30%!