




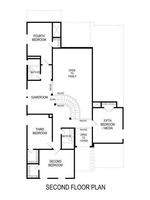
This 5 bedroom 3 1/2 bathroom plan includes a study, a powder room, spacious kitchen with a butler’s pantry, covered patio, perfect for outdoor relaxation, as well as a flex room and game and optional media room upstairs.
Additional features include extensive trim work, custom architectural detail throughout, tile floors in all wet areas, security system and so much more!
Don’t forget, with every First Texas, Gallery Custom or Harwood Home you will have the flexibility to customize our plans to fit your family perfectly.
***Some features shown on layout may be optional. Consult with the Sales Counselor for community plan specific features.***



| Available Communities | City | QMI Available | Starting From | View Plan |
|---|---|---|---|---|
| Edgewood Creek | Celina | $639,950 | View Plan | |
| Sutton Fields | Celina | — | $614,950 | View Plan |
| Las Lomas | Forney | $497,950 | View Plan | |
| Spiritas Ranch | Little Elm | $569,950 | View Plan | |
| Valencia on The Lake | Little Elm | — | $639,950 | View Plan |
| Inspiration | Lucas | $614,950 | View Plan | |
| Birdsong | Mansfield | $534,950 | View Plan | |
| Pecan Hill | McKinney | — | $669,950 | View Plan |
| Brookfield | Melissa | $579,950 | View Plan | |
| Solterra | Mesquite | $514,950 | View Plan |
At First Texas Homes, we're committed to providing you with the home of your dreams without compromise. For over 39 years, our innovative approach has allowed us to offer custom-quality homes at unbeatable production-builder prices. Many of our most sought-after floor plans now come with these popular upgrades as standard features, ensuring that you get the best value in a brand-new home. Experience the perfect blend of style, quality, and affordability — only with First Texas Homes.
Disclaimer: Upgrades, such as the circular staircase, butler’s pantry, California kitchen, freestanding bathtub in the primary bathroom, 3x4 shower in the primary bathroom, and squared wall windows, are plan-specific and may not be available on every floorplan. Featured upgrades may not be available on Select Series floorplans. Additionally, linear electric fireplaces may not be available in all communities.
Design your perfect home with a 30% discount on upgrades and options at our Design Center. Personalize every detail, from finishes and flooring to kitchen cabinets and more, while enjoying incredible savings.
Let us help bring your vision to life with exceptional value and personalized options.
Disclaimer: This offer is available for new builds only and excludes inventory homes. HomePro low-voltage upgrades and lot premiums are not eligible for the 30% off incentive or discount program.
Style your new home with stunning furniture, high-end appliances, and stylish decor from the largest furniture store in Texas. As a valued First Texas Homes customer, you’ll also enjoy these unbeatable perks:
50% Off suggested retail on select furniture and area rugs.
10% Off current price on select 75" & larger TVs.
Free shipping with any furniture purchase of $349 or more.